O Que São Cortes na Arquitetura? Definição e Fundamentos
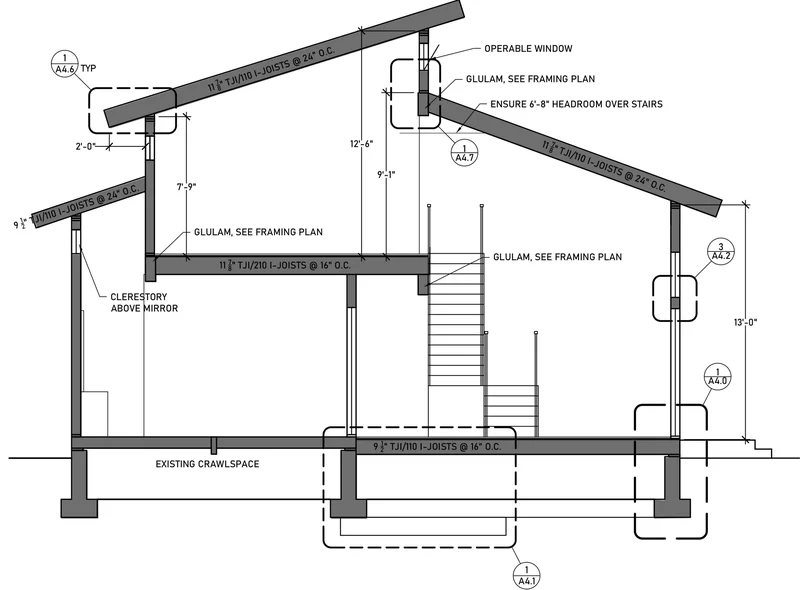
Para compreender a profunda **importância dos cortes na arquitetura**, é crucial solidificar sua definição. Um corte arquitetônico é uma representação gráfica bidimensional de uma edificação ou parte dela, obtida através de um plano secante vertical imaginário que atravessa o objeto. Em termos mais simples, é como se o edifício fosse fatiado, revelando sua composição interna em uma vista ortogonal. Essa "fatia" não é arbitrária; ela é estrategicamente posicionada para expor elementos construtivos cruciais, como: * **Fundação:** a base sobre a qual toda a estrutura se assenta. * **Paredes:** a espessura, composição e relação com outros elementos. * **Pisos e Lajes:** a espessura, os níveis e as transições entre eles. * **Cobertura:** a estrutura do telhado, inclinações e detalhes de acabamento. * **Esquadrias:** a altura de peitoris, vergas e a relação com o entorno. * **Elementos estruturais:** pilares, vigas, lajes, e como eles se interligam. * **Relações espaciais:** a altura dos ambientes, a presença de desníveis, a volumetria interna. * **Instalações:** a passagem de tubulações, dutos e fiações, embora muitas vezes em um nível mais esquemático ou em cortes específicos de instalações. A visualização dessas informações é praticamente impossível através de plantas baixas ou elevações isoladas. Enquanto a planta baixa mostra a organização horizontal e a elevação a fachada externa, o corte preenche a lacuna, oferecendo uma compreensão tridimensional do espaço e de sua materialidade. É o único desenho que permite visualizar, de uma só vez, a relação vertical entre diferentes pavimentos, a altura dos pés-direitos, a complexidade de uma escada ou a integração de um mezanino.Tipos de Cortes e Suas Aplicações Estratégicas
A escolha do tipo e da quantidade de cortes a serem elaborados depende da complexidade do projeto e das informações que se deseja transmitir. No entanto, existem classificações básicas que norteiam essa decisão.Corte Longitudinal
O corte longitudinal é aquele que atravessa a edificação em seu maior comprimento. Geralmente, ele é posicionado de forma a revelar a sequência de espaços mais representativa, a estrutura principal e a relação com o terreno. É particularmente útil para: * Mostrar a variação de níveis ao longo do edifício. * Exibir a estrutura da cobertura em sua extensão máxima. * Ilustrar a integração de múltiplos pavimentos e suas circulações verticais (escadas, elevadores). * Demonstrar a relação do edifício com o entorno em um eixo principal.Corte Transversal
O corte transversal, por sua vez, "fatia" o edifício em sua menor dimensão, perpendicularmente ao corte longitudinal. Sua importância reside em: * Revelar a largura dos ambientes e a relação entre eles em um eixo secundário. * Mostrar detalhes construtivos específicos, como a composição de paredes duplas, shafts ou calhas. * Ilustrar a estrutura de balanços e elementos em projeção. * Complementar o corte longitudinal, oferecendo uma visão completa da volumetria interna.Cortes Secundários e de Detalhes
Além dos cortes principais, existem os cortes secundários, que são posicionados em áreas específicas para destacar elementos particulares, como: * **Cortes de escadas:** Essenciais para detalhar degraus, espelhos, guarda-corpos e o encaixe estrutural. * **Cortes de rampas:** Mostram a inclinação, o piso, o guarda-corpo e o sistema de drenagem, se houver. * **Cortes de banheiros e cozinhas:** Detalham as instalações hidrossanitárias, bancadas, armários e revestimentos. * **Cortes de detalhes construtivos:** Focam em junções de materiais, sistemas de fachada, detalhes de impermeabilização, e outros pontos críticos que demandam alta precisão. Esses cortes de detalhe são cruciais para a fase de projeto executivo, onde a precisão milimétrica é exigida. Eles garantem que a execução na obra seja fiel à intenção do projeto.A Linguagem dos Cortes: Elementos Essenciais e Convenções Gráficas
Para que um corte seja verdadeiramente eficaz, ele deve seguir uma série de convenções gráficas que formam sua "linguagem". Essa padronização é fundamental para garantir que qualquer profissional da área possa interpretá-lo corretamente.Linhas de Corte e Indicadores
A **linha de corte** é um elemento fundamental. Ela é representada na planta baixa por uma linha tracejada grossa, geralmente com setas nas extremidades indicando a direção de observação e letras ou números para identificação (ex: AA', BB', 1-1'). A **NBR 6492:2021 - Representação de projetos de arquitetura** da ABNT estabelece diretrizes claras para essa representação, garantindo a uniformidade e clareza na comunicação gráfica. A não conformidade com essas normas pode levar a erros de interpretação graves no canteiro de obras.Cotas e Níveis
Os cortes são os desenhos ideais para a representação de **cotas verticais** (altura) e **cotas de nível**. * **Cotas de nível:** Indicam a altitude de um determinado ponto em relação a um referencial (geralmente o nível da rua ou um nível zero arbitrário do projeto). São essenciais para definir a hierarquia dos pavimentos, a inclinação de rampas e telhados, e a profundidade de fundações. * **Cotas de altura:** Medem a distância entre dois pontos verticais, como pé-direito, altura de vãos de portas e janelas, espessura de lajes e fundações.Texturas e Hachuras: Representando Materiais
As hachuras e texturas são elementos gráficos que indicam os materiais que foram "cortados" pelo plano secante. Elas são padronizadas e seguem as normas da ABNT para garantir a inteligibilidade. Por exemplo: * **Concreto:** Hachura diagonal simples ou dupla. * **Alvenaria:** Hachura diagonal com pequenos traços perpendiculares. * **Madeira:** Textura que simula os veios da madeira. * **Solo:** Hachura pontilhada ou com pequenos traços irregulares. A correta aplicação das hachuras não só informa sobre a materialidade, mas também contribui para a clareza visual do desenho, distinguindo o que está em corte do que está em elevação.Simbologia e Legislação (ABNT)
A ABNT, através de diversas normas, padroniza a simbologia e a representação gráfica em projetos de arquitetura e construção civil. A **NBR 6492:2021** é a principal norma que rege a "Representação de projetos de arquitetura", estabelecendo convenções para linhas, hachuras, cotas, níveis e a identificação de cortes. A aderência a essas normas não é apenas uma questão de boa prática, mas uma exigência legal para a aprovação de projetos em órgãos públicos e para a comunicação eficaz entre todos os agentes da cadeia produtiva. Um corte que não segue as normas pode ser indecifrável ou, pior, levar a erros de execução.O Papel dos Cortes em Diferentes Fases do Projeto
A **importância dos cortes na arquitetura** se manifesta em todas as etapas do processo de projeto, desde as primeiras concepções até a execução final da obra.Estudo Preliminar e Anteprojeto
Mesmo nas fases iniciais, quando o projeto ainda está em formação, os cortes são cruciais. Eles permitem ao arquiteto: * **Explorar a volumetria interna:** Como os espaços se relacionam verticalmente? Quais serão os pés-direitos? Haverá mezaninos, duplos-pé-direitos? * **Analisar a relação com o terreno:** Como o edifício se implanta no lote, considerando desníveis, cortes e aterros? * **Avaliar a iluminação e ventilação natural:** Como a altura dos vãos e a profundidade dos ambientes afetam a entrada de luz e ar? * **Comunicar a ideia ao cliente:** Um corte simples, mas expressivo, pode transmitir a experiência espacial do projeto de forma muito mais eficaz do que apenas plantas baixas. Nesta fase, os cortes podem ser mais esquemáticos, focando na volumetria e nas relações espaciais, sem o nível de detalhe construtivo.Projeto Executivo: A Base da Construção
É na fase de projeto executivo que os cortes atingem seu ápice de detalhamento e importância. Eles se tornam a espinha dorsal das informações construtivas, fornecendo dados essenciais para: * **Dimensionamento estrutural:** Os cortes mostram a altura das lajes, a posição de vigas e pilares, e a relação com as fundações. * **Instalações:** A passagem de tubulações de água, esgoto, elétrica, ar condicionado e outros sistemas é visualizada e compatibilizada através dos cortes. * **Orçamento e planejamento:** Detalhes construtivos revelados nos cortes permitem um levantamento de materiais e serviços muito mais preciso. * **Execução da obra:** Pedreiros, carpinteiros, encanadores e outros profissionais utilizam os cortes como guia para a materialização do projeto. * **Fiscalização:** Permitem que o fiscal da obra verifique a conformidade da execução com o projeto.Compatibilização e Coordenação de Projetos Complementares
Em projetos complexos, onde múltiplas disciplinas (estrutura, elétrica, hidráulica, climatização, paisagismo, etc.) atuam simultaneamente, os cortes são a ferramenta primordial para a **compatibilização**. Eles permitem identificar e resolver conflitos entre os diferentes sistemas antes que se tornem problemas caros no canteiro de obras.Conclusão
Compreender a fundo o tema A Importancia Dos Cortes Na Arquitetura é essencial para qualquer profissional ou entusiasta da arquitetura e construção civil. Os conceitos, técnicas e normas apresentados neste guia fornecem uma base sólida para a tomada de decisões informadas em projetos de qualquer escala.
A evolução constante dos materiais, tecnologias e metodologias exige que profissionais da área mantenham-se atualizados e busquem sempre as melhores práticas do mercado. Esperamos que este conteúdo tenha sido valioso para o seu aprendizado e desenvolvimento profissional.
Para aprofundar seus conhecimentos, explore outros artigos do Arqpedia e utilize nossas ferramentas gratuitas para otimizar seus projetos.
| Aspecto | Detalhes | Importância |
|---|---|---|
| Conceito | Definição técnica e aplicação prática de a importancia dos cortes na arquitetura | Essencial |
| Normas | Conformidade com normas ABNT e regulamentações vigentes | Obrigatória |
| Aplicação | Projetos residenciais, comerciais e institucionais | Alta |
| Profissionais | Arquitetos, engenheiros e designers de interiores | Recomendada |
Perguntas Frequentes sobre A Importancia Dos Cortes Na Arquitetura
O que é a importancia dos cortes na arquitetura na arquitetura?
A Importancia Dos Cortes Na Arquitetura é um conceito fundamental na arquitetura e construção civil, abrangendo técnicas, materiais e práticas que influenciam diretamente a qualidade e funcionalidade dos projetos.
Quais são as normas técnicas relacionadas?
As principais normas técnicas são estabelecidas pela ABNT e devem ser consultadas para garantir conformidade e segurança em todos os projetos.
Como aplicar este conhecimento na prática?
A aplicação prática envolve o estudo detalhado das especificações técnicas, a consulta a profissionais especializados e o uso de ferramentas adequadas de projeto e cálculo.





