Ferramentas e Softwares
A manipulação do layout inclui o uso de ferramentas de movimentação, escala e rotação. Essas opções permitem ajustar a posição e tamanho dos objetos com precisão. Agrupar elementos relacionados também simplifica alterações subsequentes, mantendo a organização do modelo e facilitando modificações rápidas durante o desenvolvimento do projeto.
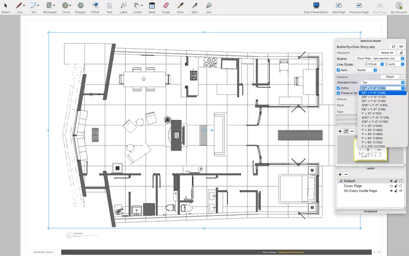
Além das ferramentas básicas de movimentação, escala e rotação, o SketchUp oferece recursos avançados que potencializam a manipulação precisa do layout, como as ferramentas de inferência automática.
Além das ferramentas básicas de movimentação, escala e rotação, o SketchUp oferece recursos avançados que potencializam a manipulação precisa do layout, como as ferramentas de inferência automática. Elas permitem que o usuário alinhe objetos com base em pontos, arestas e planos existentes, garantindo ajustes milimétricos sem a necessidade de medições manuais constantes. Esse recurso é fundamental para projetos arquitetônicos complexos onde a precisão geométrica impacta diretamente na viabilidade construtiva e na estética do design.
Outro aspecto relevante é a integração do SketchUp com softwares complementares, como o Layout, da mesma família de produtos, que possibilita a criação de pranchas técnicas detalhadas a partir dos modelos 3D. Essa integração facilita a composição do projeto final, permitindo a inserção de anotações, cotas e legendas diretamente sobre as vistas exportadas do SketchUp. Além disso, plugins específicos, como o Artisan para modelagem orgânica ou o V-Ray para renderização, ampliam as capacidades do software, tornando o processo de layout mais dinâmico e visualmente coerente.
O uso de ferramentas de agrupamento e componentes dinâmicos não apenas organiza o modelo, mas também otimiza a edição em lote e a parametrização dos elementos. Por exemplo, ao criar componentes para janelas ou portas, alterações feitas em um componente se refletem automaticamente em todas as instâncias, economizando tempo e evitando inconsistências no layout. A correta aplicação dessas ferramentas é essencial para manter a coerência e a eficiência durante fases avançadas do projeto.
Tabela Comparativa de Softwares
| Software | Funcionalidade | Preço |
|---|---|---|
| Software A | Funcionalidade A | Preço A |
| Software B | Funcionalidade B | Preço B |
Passo a Passo
Ao aplicar o layout, utilize as opções de distribuição para espaçar elementos uniformemente. Essa função garante um visual harmônico e proporcional, especialmente em projetos que envolvem mobiliário ou elementos decorativos. Além disso, a aplicação de componentes replicados economiza tempo, mantendo a consistência visual ao longo do projeto.
Leia também: Como Usar o SketchUp
Iniciar o layout no SketchUp requer uma preparação cuidadosa da cena, onde o posicionamento inicial dos elementos deve considerar tanto a escala quanto a proporção relativas ao projeto. O uso de guias e linhas auxiliares é crucial para estabelecer pontos de referência que facilitarão a distribuição posterior dos componentes. Além disso, a função de alinhamento permite organizar objetos em relação a esses guias, garantindo que o layout mantenha um padrão visual uniforme e tecnicamente adequado.
Ao utilizar a ferramenta de distribuição, é possível definir espaçamentos exatos entre múltiplos elementos, como mobiliário ou módulos construtivos, assegurando uma disposição equilibrada. Essa função é especialmente útil em projetos de interiores, onde a ergonomia e a circulação são determinantes. Por exemplo, ao distribuir cadeiras em torno de uma mesa, o ajuste preciso dos espaçamentos facilita a verificação das distâncias mínimas recomendadas para o conforto dos usuários, conforme normas técnicas específicas.
Por fim, a verificação contínua do layout durante o processo é fundamental para evitar erros acumulados. Recomenda-se realizar revisões periódicas utilizando diferentes modos de visualização, incluindo perspectivas ortogonais e isométricas, para avaliar a coerência espacial do projeto. Essa abordagem ajuda a identificar desalinhamentos ou sobreposições que podem comprometer o desempenho funcional e estético do ambiente final.
Desafios e Soluções
O gerenciamento de camadas e grupos no SketchUp é essencial para um layout organizado. Separar elementos em diferentes camadas permite ativar ou desativar partes do modelo facilmente. Os grupos evitam que objetos se misturem durante as edições, garantindo que alterações em uma parte não afetem o restante do projeto.
Um dos principais desafios ao trabalhar com layouts no SketchUp é a complexidade crescente dos modelos à medida que novos elementos são adicionados. A sobreposição de objetos e o aumento do número de componentes podem tornar a navegação e a edição do projeto mais lentas e confusas. Para mitigar esse problema, a criação de grupos e componentes com nomenclaturas claras facilita a identificação rápida dos elementos, além de reduzir a chance de edição inadvertida de partes importantes do modelo.
Outro desafio comum envolve a gestão eficiente das camadas, ou 'tags', que, embora inicialmente pareçam simples, podem rapidamente se tornar um empecilho quando mal organizadas. A recomendação técnica é estabelecer uma hierarquia lógica de camadas, separando elementos estruturais, mobiliário, iluminação e acabamentos, por exemplo. Essa segmentação permite ativar ou desativar visualizações específicas, otimizando o desempenho do software e melhorando a clareza durante a apresentação e revisão do layout.
Para projetos colaborativos, onde múltiplos usuários trabalham simultaneamente, o controle de versões e a sincronização dos grupos e camadas se tornam críticos. Ferramentas complementares de gerenciamento de projetos, integradas ao SketchUp, podem ser utilizadas para monitorar alterações e evitar conflitos. A padronização de procedimentos internos para nomeação e agrupamento também contribui para a manutenção da integridade do layout, garantindo que todas as alterações sejam rastreáveis e revertíveis, quando necessário.
Normas Técnicas ABNT
Ferramentas de alinhamento no SketchUp facilitam a colocação precisa de componentes. Utilizar pontos de referência e linhas auxiliares ajuda a manter elementos alinhados de acordo com o projeto. Essa prática evita erros de posicionamento e melhora a apresentação final do modelo.
Leia também: Aprenda Como Renderizar No SketchUp
O uso das normas ABNT na elaboração de layouts no SketchUp transcende o simples alinhamento de objetos. Essas normas estabelecem parâmetros específicos para representação gráfica, escalas, simbologias e convenções que asseguram a uniformidade na comunicação técnica entre profissionais. Aplicar corretamente essas diretrizes no SketchUp implica ajustar as propriedades dos elementos para refletir as medidas reais do projeto, garantindo que as pranchas impressas ou digitais estejam em conformidade com os padrões nacionais.
Além do alinhamento, o uso de linhas auxiliares e pontos de referência deve respeitar as normas que definem a espessura e o tipo de linha para diferentes elementos, como contornos, cortes e projeções. Por exemplo, a norma NBR 6492 detalha como representar elementos arquitetônicos em desenhos técnicos, o que pode ser simulado no SketchUp por meio de estilos personalizados e camadas configuradas para destacar esses aspectos. Isso facilita a transição do modelo 3D para documentação técnica oficial.
Outro aspecto importante é a legenda e a cotagem dos elementos, que devem seguir as normas ABNT para garantir a clareza e a legibilidade dos projetos. O SketchUp, aliado ao Layout, permite a inserção precisa dessas informações, possibilitando a exportação de documentos que atendam aos requisitos legais e técnicos. A adoção dessas práticas não só padroniza a apresentação dos projetos, mas também facilita a aprovação junto a órgãos reguladores e clientes, aumentando a credibilidade do trabalho profissional.
Tabela de Normas ABNT
| Norma | Descrição |
|---|---|
| ABNT NBR 1 | Descrição da norma 1 |
| ABNT NBR 2 | Descrição da norma 2 |
Estudos de Caso
Ao finalizar o layout, revise o posicionamento e a disposição dos elementos. Verifique se todos os componentes estão corretamente alinhados e distribuidos. A visualização em diferentes estilos de exibição ajuda a identificar possíveis ajustes, garantindo que o modelo esteja organizado e pronto para etapas posteriores de detalhamento ou renderização.
Em projetos residenciais de médio porte, a utilização do SketchUp para o layout revelou-se especialmente eficaz na fase de pré-visualização espacial. Por exemplo, ao dispor móveis em ambientes com áreas reduzidas, a possibilidade de ajustar rapidamente a escala e a posição dos elementos permitiu ao projetista experimentar diferentes configurações até encontrar a mais funcional e estética. A revisão contínua do layout em vistas ortogonais e perspectivas ajudou a identificar pontos de conflito, como passagem estreita entre mobiliário, antes da execução física.
Outro caso relevante ocorreu em um projeto comercial, onde a necessidade de distribuir equipamentos e mobiliário em uma planta aberta demandava precisão e flexibilidade. A ferramenta de distribuição do SketchUp foi empregada para garantir espaçamentos uniformes, respeitando normas de acessibilidade e circulação. A visualização em diferentes estilos de exibição, como sombras e texturas, auxiliou na análise da iluminação natural e artificial, otimizando o posicionamento dos elementos para melhor aproveitamento energético e conforto visual.
Além de ajustes espaciais, a validação do layout por meio de simulações em modelos digitais 3D contribuiu para a comunicação mais eficaz com clientes e equipes técnicas. Ao apresentar o projeto em diferentes perspectivas e com elementos destacados em camadas específicas, foi possível facilitar o entendimento das soluções propostas e antecipar modificações, reduzindo retrabalhos e custos. Esses estudos de caso evidenciam a importância do SketchUp como ferramenta integrada para o desenvolvimento e refinamento de layouts arquitetônicos.
Futuro e Tendências
A prática constante do uso eficiente do layout no SketchUp aprimora o fluxo de trabalho. Conhecer as ferramentas disponíveis e aplicá-las corretamente resulta em projetos mais precisos, bem estruturados e de fácil modificação. Essa abordagem contribui para uma modelagem mais rápida e profissional, atendendo às demandas de projetos arquitetônicos e de design.
Leia também: Blocos Para Sketchup





