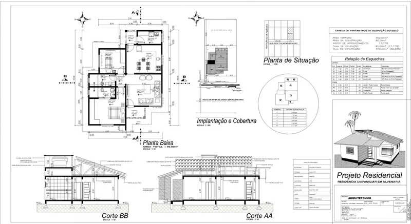
Principais Tipos de Plantas Baixas
Planta baixa residencial
A planta baixa para ambientes residenciais enfatiza a organização dos espaços, como quartos, salas, cozinhas e banheiros, priorizando conforto e funcionalidade.
Planta baixa comercial
Para lojas, escritórios e ambientes comerciais, a planta baixa foca na circulação, exposição de produtos e acessibilidade ao público.
Planta baixa industrial
Projetada para galpões, fábricas e instalações industriais, destaca a logística, localização de equipamentos e áreas de segurança.
Além das plantas baixas residenciais, existem diversos tipos específicos que atendem às peculiaridades de cada projeto.
Além das plantas baixas residenciais, existem diversos tipos específicos que atendem às peculiaridades de cada projeto. Por exemplo, as plantas comerciais e corporativas demandam uma configuração espacial voltada para a circulação eficiente, acessibilidade e a integração entre áreas de trabalho e atendimento. Nestes casos, o desenho da planta baixa deve considerar aspectos como pontos de energia para equipamentos, sistemas de ventilação e iluminação natural, além de saídas de emergência que atendam às normas de segurança. A planta baixa industrial, por sua vez, enfatiza o fluxo produtivo e a disposição de maquinários, sendo fundamental a definição clara das áreas de armazenamento, produção e expedição para otimizar a logística interna.
Outro tipo relevante são as plantas baixas urbanísticas, que abrangem o planejamento de lotes, ruas, áreas verdes e equipamentos públicos. Neste contexto, a planta baixa passa a ser uma representação mais ampla, integrando o projeto arquitetônico ao entorno urbano e às infraestruturas existentes, como redes de água, esgoto e energia. A planta baixa para reformas, especialmente em edificações históricas, exige um levantamento detalhado das condições existentes, incluindo espessuras de paredes, vãos e elementos estruturais, para garantir que as intervenções respeitem a integridade do imóvel e valorizem suas características originais. Cada tipo de planta baixa, portanto, reflete as necessidades específicas do usuário final e do contexto construtivo.
Comparativo dos tipos de plantas baixas
| Características | Residencial | Comercial | Industrial |
|---|---|---|---|
| Prioridade | Conforto e privacidade | Circulação e exposição | Segurança e logística |
| Elementos fixos | Móveis, paredes, portas | Expositores, balcões | Máquinas, equipamentos |
| Normas aplicadas | ABNT NBR 6492 e NBR 9077 | ABNT NBR 9050 (acessibilidade) | Normas de segurança NR-12 e NR-18 |
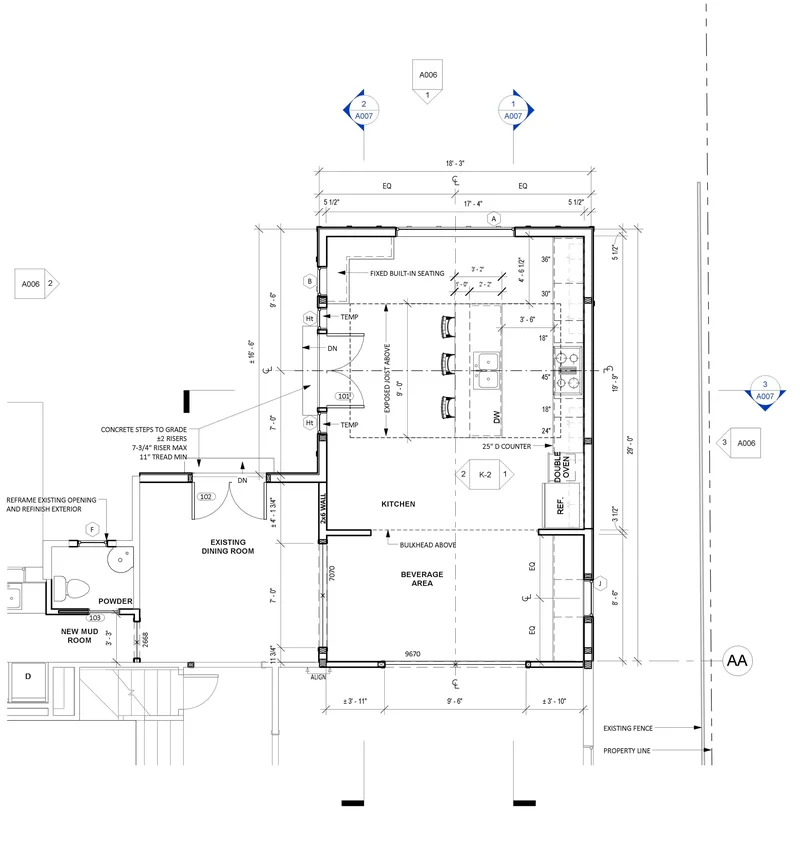
Elementos Básicos de uma Planta Baixa
Paredes e divisórias
Representa os limites físicos dos ambientes, sendo fundamental indicar espessura, materiais utilizados e sentidos de abertura de portas.
Leia também: Como Fazer Planta Baixa no AutoCAD?
Aberturas: portas e janelas
Deve estar em escala, indicando a direção de abertura e dimensões, essenciais para o entendimento correto do projeto.
Mobiliário e equipamentos
Embora não façam parte da estrutura, elementos internos são importantes para avaliar funcionalidade e circulação.
Escadas e rampas
Elementos que conectam níveis diferentes, essenciais em edificações com mais de um pavimento ou acessibilidade.
Simbologia padrão
A utilização de símbolos gráficos padronizados facilita a compreensão das informações na planta. Os símbolos devem seguir normas técnicas para garantir clareza.
Além das paredes e divisórias, a planta baixa inclui elementos fundamentais como esquadrias, que englobam portas e janelas, detalhando suas dimensões, tipos de abertura e posição exata na alvenaria. A representação correta desses elementos é crucial para garantir a funcionalidade, ventilação e iluminação dos ambientes, além de facilitar a execução da obra. Outro componente essencial são os mobiliários fixos, como bancadas, pias, sanitários e armários embutidos, que devem ser indicados para assegurar que o espaço seja utilizado de forma eficiente e ergonômica, respeitando as normas técnicas de acessibilidade e conforto.
Adicionalmente, as plantas baixas precisam apresentar a indicação dos níveis de piso e altura dos ambientes, que são vitais para o entendimento do volume espacial e para a compatibilização com projetos complementares, como instalações elétricas e hidráulicas. Elementos estruturais, como pilares e vigas, também devem estar claramente representados para orientar a execução e evitar interferências. A correta simbologia e a padronização desses elementos facilitam a comunicação entre arquitetos, engenheiros e construtores, minimizando erros e retrabalhos durante a obra.
Normas e Padrões da ABNT para Plantas Baixas
ABNT NBR 6492 - Representação de projetos de arquitetura
A norma estabelece princípios para a representação gráfica de projetos arquitetônicos, incluindo escalas padrão, símbolos, cortes e legendas, promovendo uniformidade.
ABNT NBR 9050 - Acessibilidade a edificações, mobiliário, espaços e equipamentos urbanos
A norma garante que as plantas considerem espaços acessíveis a todos, incluindo pessoas com deficiência ou mobilidade reduzida.
Importância da normatização
Seguir as normas da ABNT é fundamental para a interpretação precisa dos projetos, atendendo às exigências legais e assegurando a segurança da edificação.
A ABNT NBR 6492 não apenas orienta sobre os aspectos gráficos da planta baixa, mas também delimita critérios para a apresentação de informações técnicas que garantem a clareza e uniformidade dos projetos. Entre os requisitos está a indicação obrigatória da escala utilizada, que deve ser adequada ao nível de detalhe necessário, variando normalmente entre 1:20 para detalhes construtivos e 1:100 para plantas gerais. A norma também especifica o uso correto dos símbolos gráficos padronizados para representar elementos construtivos como portas, janelas, escadas e mobiliário, facilitando a leitura universal do desenho.
Outro ponto relevante abordado pela norma é a formatação das legendas e cotas, que devem ser legíveis e dispostas de maneira que não interfiram nos elementos gráficos. A NBR 6492 recomenda ainda o uso de linhas com espessuras diferenciadas para representar limites, cortes e projeções, aumentando a compreensão visual do projeto. Essa padronização é fundamental para a integração entre as diversas disciplinas envolvidas na construção civil, como arquitetura, estrutura, elétrica e hidráulica, garantindo que todos os profissionais trabalhem com a mesma base interpretativa e reduzindo o risco de inconsistências técnicas.
| Norma ABNT | Descrição | Aplicação |
|---|---|---|
| NBR 6492 | Representação de projetos arquitetônicos | Metodologia, simbologia e escalas para plantas |
| NBR 9050 | Acessibilidade | Garantir projetos acessíveis a todos os usuários |
| NBR 9077 | Saídas de emergência em edifícios | Regras para rotas de fuga e saídas |
Softwares Mais Utilizados para o Desenho de Plantas Baixas
AutoCAD
A planta baixa é uma ferramenta tradicional, consolidada no mercado, com desenhos técnicos de alta precisão milimétrica.
Revit
Sistemas BIM (Building Information Modeling) permitem a modelagem 3D integrada às plantas baixas, facilitando a coordenação entre disciplinas.
SketchUp
Modelagem 3D intuitiva é comum em visualizações rápidas e apresentações, incluindo plantas baixas conceituais.
Outros softwares de relevância
Softwares como Archicad, Vectorworks, Floorplanner e Sweet Home 3D oferecem opções variadas, gratuitas e pagas, atendendo diferentes necessidades.
Além do AutoCAD e Revit, softwares como o ArchiCAD e SketchUp têm ganhado espaço no desenvolvimento de plantas baixas, sobretudo por sua interface intuitiva e ferramentas de modelagem tridimensional. O ArchiCAD, por exemplo, é uma plataforma BIM robusta que permite a criação integrada de modelos digitais, facilitando a coordenação entre projetos arquitetônicos e complementares. Já o SketchUp destaca-se pela rapidez na modelagem conceitual, sendo muito utilizado em etapas iniciais para visualização volumétrica e ajustes preliminares, o que agiliza o processo criativo e a comunicação com clientes.
Ferramentas específicas para projetos de pequeno porte ou para profissionais autônomos, como o Vectorworks e o CorelCAD, também oferecem recursos avançados de desenho técnico e compatibilidade com arquivos em DWG e IFC. A crescente adoção do BIM no mercado brasileiro tem impulsionado a demanda por softwares que não apenas desenhem plantas baixas, mas que integrem informações técnicas, cronogramas e orçamentos em um único ambiente digital. Essa integração promove maior eficiência na gestão do projeto e na execução da obra, reduzindo desperdícios e aumentando a precisão dos resultados.
Interpretação e Leitura de Plantas Baixas
Entendendo escalas e medidas
Para interpretação correta, é vital compreender o conceito de escala. Plantas são desenhadas em escalas reduzidas, como 1:50 ou 1:100, para representar as dimensões reais.
Leia também: Desvendando a Beleza da Planta Baixa Humanizada na Arquitetura Moderna
Decifrando símbolos e legendas
Conhecer a simbologia padrão e consultar sempre a legenda da planta evita erros na comunicação técnica.
Reconhecendo áreas e circulações
A leitura adequada da planta baixa permite compreender a disposição espacial, pontos de circulação, acessos e áreas funcionais do projeto.
Além do domínio das escalas, a interpretação eficaz de plantas baixas exige o entendimento dos símbolos gráficos e das convenções adotadas. Cada elemento representado na planta, como portas, janelas, mobiliários e equipamentos, possui uma simbologia definida, que deve ser correlacionada à legenda para garantir a correta leitura. Por exemplo, o sentido de abertura das portas é indicado por um arco, enquanto diferentes tipos de linhas podem representar paredes existentes, novas ou demolidas. Essa leitura crítica é fundamental para a correta execução do projeto e para identificar possíveis conflitos antes da construção.
Outro aspecto importante é a análise da circulação e ergonomia dos espaços a partir da planta baixa. A interpretação deve considerar o fluxo dos usuários, a acessibilidade e a funcionalidade dos ambientes, avaliando se as dimensões e posicionamento dos elementos garantem conforto e segurança. Além disso, a leitura das cotas, que indicam medidas lineares e alturas, permite verificar a conformidade do projeto com as normas técnicas e as necessidades específicas do cliente. Portanto, a leitura técnica da planta baixa é uma habilidade essencial para arquitetos, engenheiros e demais profissionais envolvidos no processo construtivo.
Passos para uma análise eficiente
- Identificar a orientação do projeto (norte);
- Verificar escalas e medidas;
- Interpretar elementos construtivos e móveis;
- Analisar a funcionalidade e ergonomia dos espaços;
- Correlacionar a planta com outros projetos complementares.
Dicas para Criar Plantas Baixas Altamente Eficazes
Planeje antes de desenhar
Considere as necessidades do cliente, as condições do terreno, as normas legais e o orçamento para elaborar uma planta compatível com os objetivos do projeto.
Use escalas adequadas
Selecione a escala apropriada para o nível de detalhe necessário, garantindo que a leitura seja clara e precisa.
Cuidado com a simbologia
Adote símbolos padronizados e utilize legendas detalhadas para facilitar a compreensão do desenho.
Avalie e revise
Realize revisões frequentes para detectar e corrigir possíveis erros ou inconsistências antes da entrega final.
Comunicação visual
Aplique cores, diferentes tipos de traçado e legendas para evidenciar informações essenciais na planta.





