Desvendando o Símbolo de Tomada: Morfologia e Significado
O símbolo de tomada é uma representação gráfica simplificada que transmite informações essenciais. Conhecer sua morfologia e variações é fundamental para profissionais da área.
O símbolo de tomada, embora pareça simples à primeira vista, representa uma complexa padronização gráfica que facilita a leitura e interpretação dos projetos elétricos.
O símbolo de tomada, embora pareça simples à primeira vista, representa uma complexa padronização gráfica que facilita a leitura e interpretação dos projetos elétricos. Sua morfologia é cuidadosamente desenhada para garantir clareza, mesmo em escalas reduzidas nos desenhos técnicos. Elementos como círculos, linhas retas e posicionamento dos pinos indicam não apenas a presença da tomada, mas também o tipo e a tensão especificada para aquela conexão. Essa padronização visual é essencial para evitar erros na instalação, garantindo segurança e funcionalidade no uso cotidiano dos ambientes arquitetônicos.
Além da representação gráfica, o símbolo de tomada possui uma função comunicativa que transcende o desenho técnico, atuando como uma linguagem universal entre arquitetos, engenheiros eletricistas e instaladores. Na arquitetura moderna, onde a integração entre sistemas é cada vez mais complexa, o símbolo deve ser compreendido em conjunto com outros elementos do projeto, como circuitos, disjuntores e pontos de iluminação. Essa inter-relação assegura que o sistema elétrico seja eficiente e adaptado às necessidades específicas do espaço, refletindo um planejamento integrado e sustentável.
Outro aspecto relevante na morfologia do símbolo de tomada é a sua adaptação para diferentes tipos de tomadas, considerando tensões e correntes variadas, como tomadas monofásicas, bifásicas e trifásicas. Cada variante possui um desenho específico que identifica a configuração elétrica e a compatibilidade dos equipamentos. Por exemplo, tomadas para uso industrial podem ter símbolos com formatos diferenciados para indicar maior amperagem, enquanto as residenciais mantêm uma padronização mais simples. Essa diferenciação gráfica é crucial para evitar incompatibilidades e riscos elétricos.
A Representação Gráfica Padrão
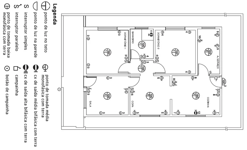
De acordo com a ABNT NBR 5444, o símbolo básico de tomada é um círculo, complementado por traços e letras que indicam altura, polaridade e finalidade.
A tabela a seguir apresenta as representações mais comuns de símbolos de tomadas, incluindo variações para diferentes usos e níveis de alimentação.
| Símbolo | Descrição | Altura Padrão (do piso acabado) | Aplicação Típica |
|---|---|---|---|
![]() |
Tomada de Corrente Baixa | 30 cm | Atrás de móveis (sofás, camas), para abajures, aspiradores de pó. |
![]() |
Tomada de Corrente Média | 1,10 m a 1,30 m | Uso geral em salas, quartos, corredores, para televisores, computadores. |
![]() |
Tomada de Corrente Alta | 2,00 m a 2,20 m | Para ar condicionado, exaustores, aquecedores de água, coifas. |
![]() |
Tomada de Piso | No nível do piso | Ambientes amplos, mesas de reunião, ilhas de cozinha. |
Variações e Detalhes Cruciais de Simbolização
A simbologia pode indicar polaridade e voltagem, sendo que o padrão brasileiro utiliza três pinos (fase, neutro e terra) conforme a NBR 14136. A diferenciação de voltagem (127V ou 220V) é indicada por letras ou notas próximas ao símbolo.
Um "T" ao lado do círculo geralmente representa uma tomada de uso geral (TUG). Para tomadas de uso específico, a simbologia é mais detalhada e pode incluir traços diagonais ou anotações específicas.
Símbolos para Tomadas Especiais e de Uso Específico (TUE)
Tomadas de Uso Específico (TUEs) destinam-se a equipamentos que requerem circuitos dedicados, como chuveiros elétricos, ar condicionado, fornos elétricos e máquinas de lavar louça. Seus símbolos incluem elementos adicionais para diferenciação.
A identificação clara das TUEs é fundamental para o dimensionamento correto, proteção contra sobrecargas e segurança operacional de toda a instalação elétrica.
Normas Técnicas Brasileiras: ABNT NBR 5444 e Outras Relevantes
A conformidade com as normas da ABNT é a base para projetos elétricos seguros e eficientes no Brasil. O respeito às padronizações garante a compatibilidade, segurança e qualidade das instalações.
A ABNT NBR 5444 é a norma técnica que estabelece os símbolos gráficos para instalações elétricas, incluindo as tomadas, e é fundamental para garantir uniformidade em projetos arquitetônicos no Brasil. Essa norma detalha não apenas os símbolos, mas também suas dimensões, proporções e a forma correta de aplicá-los nos desenhos técnicos. Seguir a NBR 5444 evita ambiguidades e facilita a compreensão do projeto por todos os profissionais envolvidos, desde o projetista até o eletricista responsável pela execução.
Além da NBR 5444, outras normas complementares influenciam a representação e a instalação das tomadas, como a ABNT NBR 5410, que trata das instalações elétricas de baixa tensão. Esta norma define critérios de segurança, capacidade de carga e posicionamento das tomadas nos ambientes. Em conjunto, essas normas garantem que o símbolo gráfico corresponda a uma instalação real segura e eficiente, respeitando as exigências legais e técnicas para evitar sobrecargas, curto-circuitos e acidentes.
Na prática, a aplicação correta dessas normas facilita a compatibilização entre o projeto arquitetônico e o projeto elétrico, evitando retrabalhos e custos adicionais. Por exemplo, o posicionamento das tomadas deve considerar aspectos ergonômicos e funcionais, como a altura adequada para uso em diferentes ambientes (cozinhas, salas, banheiros), além da proximidade com equipamentos específicos. A norma orienta essas decisões, e o símbolo de tomada no desenho passa a refletir essas escolhas, tornando o projeto mais claro e executável.
Leia também: 5 Pontos Da Arquitetura Moderna Entendendo Os Fundamentos Que Moldaram O Mundo C
Leia também: A Magia da Revitalização Urbana na Arquitetura Moderna
ABNT NBR 5444: Símbolos Gráficos para Instalações Elétricas Prediais
A ABNT NBR 5444 é a principal referência para símbolos gráficos em projetos elétricos. Apesar de sua última revisão significativa ser de 1989, ela permanece como padrão essencial para a representação de componentes elétricos, incluindo tomadas, interruptores e quadros de distribuição.
Embora a norma estabeleça símbolos padrão, adaptações podem ocorrer conforme a evolução tecnológica ou especificidades do projeto, desde que devidamente legendadas.
ConclusãoO entendimento aprofundado do símbolo de tomada e sua representação é vital para profissionais e estudantes de arquitetura, engenharia e construção civil, fornecendo uma base sólida para o desenvolvimento de projetos seguros, claros e eficientes.
A evolução de materiais, tecnologias e metodologias obriga profissionais de arquitetura a se manterem atualizados e adotarem as melhores práticas do setor. Este artigo oferece informações relevantes para aprimorar seu conhecimento e desenvolvimento na área.
Para expandir seus conhecimentos, consulte outros artigos do Arqpedia e utilize nossas ferramentas gratuitas para aprimorar seus projetos.








